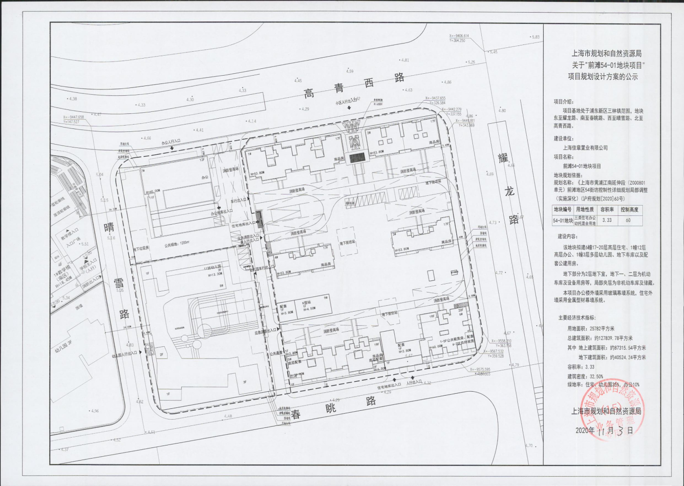
前滩东方悦澜房源售罄,成功开盘告捷!
平台管理员
2022-10-08
2022年9月30日,前滩东方悦澜盛大开盘,倾情推出建面约84-165平方米的优质房源。
本次开盘,我们以备案均价119,000元/平方米的市场竞争力,吸引了众多置业者的关注。
通过积分系统公平公正地分配房源,最终,所有推出的房源均在开盘当天售罄,取得了圆满成功。
感谢每一位客户的信任与支持,我们期待与您共创美好未来!
本次开盘,我们以备案均价119,000元/平方米的市场竞争力,吸引了众多置业者的关注。
通过积分系统公平公正地分配房源,最终,所有推出的房源均在开盘当天售罄,取得了圆满成功。
感谢每一位客户的信任与支持,我们期待与您共创美好未来!