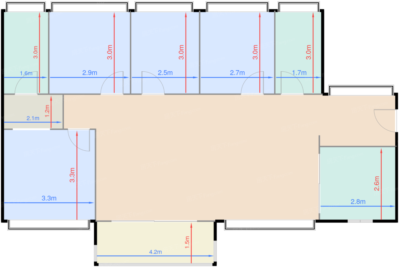
岗宏融湖盛景花园113平户型

113平户型
113平户型
共2张
113平户型 4室2厅2卫 在售
519
建筑面积: 113.00㎡
朝向:

特色

户型方正,采光充足,平湖