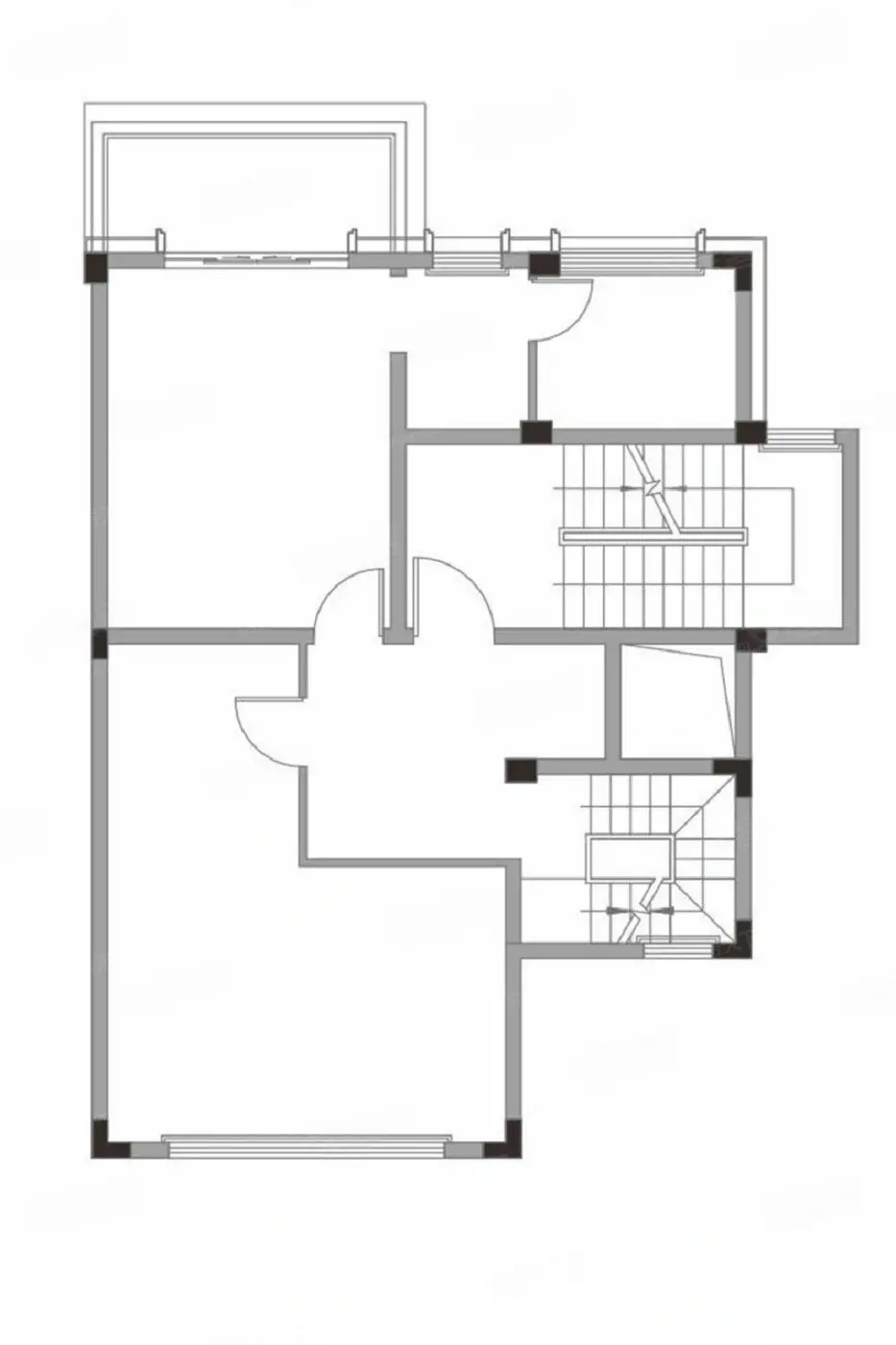
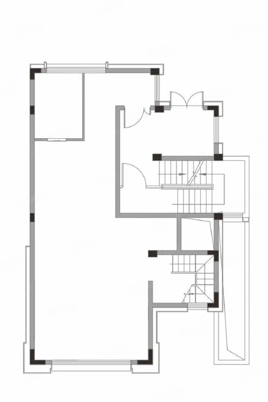
壹山A1

A1
A1
A1
共3张
A1 5室2厅5卫 在售
650
建筑面积: 386.00㎡
朝向:

特色

南北通透,全明格局,户型方正,采光充足,邛崃