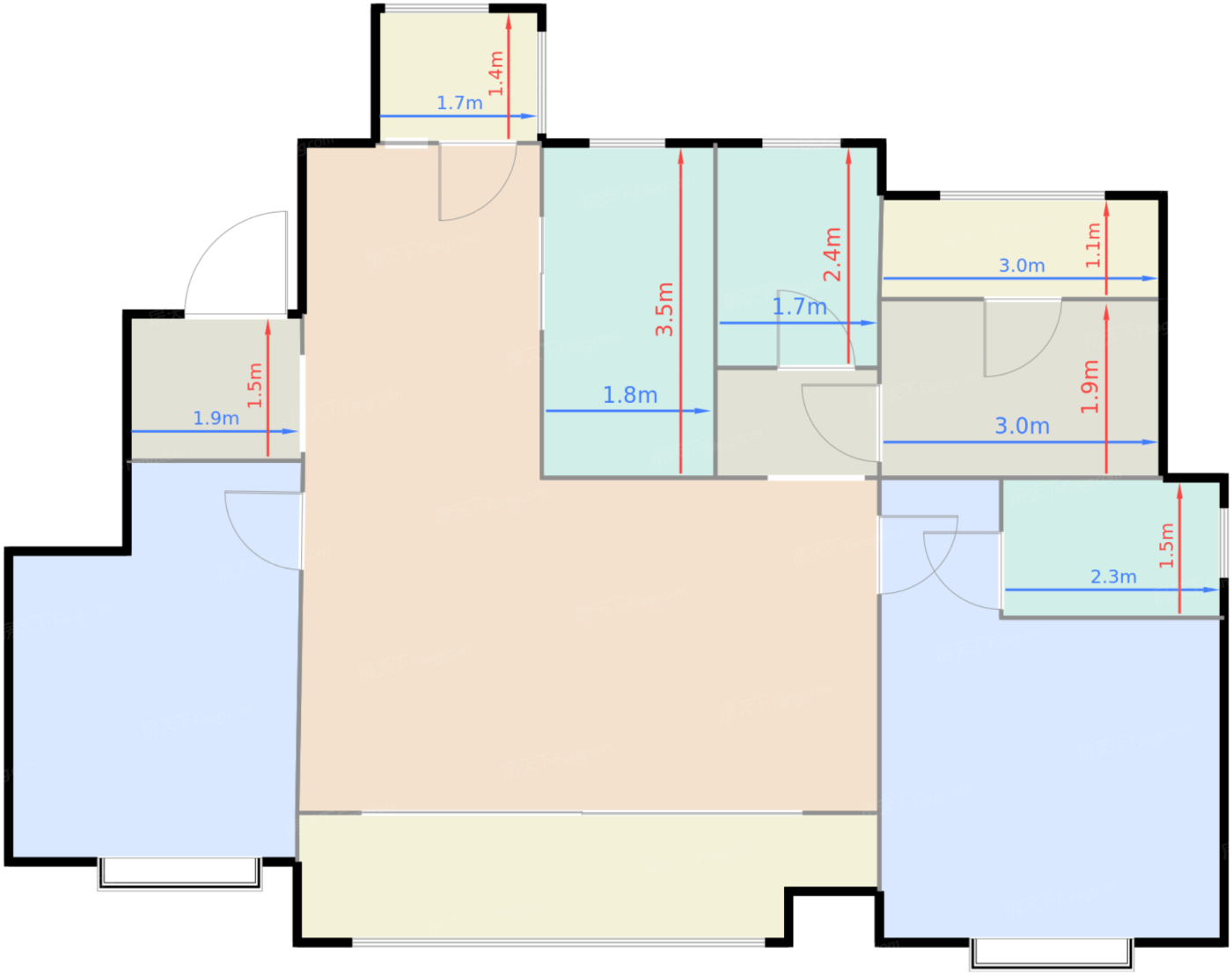
新城悦隽盛世一期一批次洋房F1户型

一期一批次洋房F1户型
一期一批次洋房F1户型
共2张
一期一批次洋房F1户型 2室2厅2卫 售完
65535
建筑面积: 125.00㎡
朝向:

特色

全明格局,采光充足,青白江