润泽府B户型

B户型
B户型
共2张
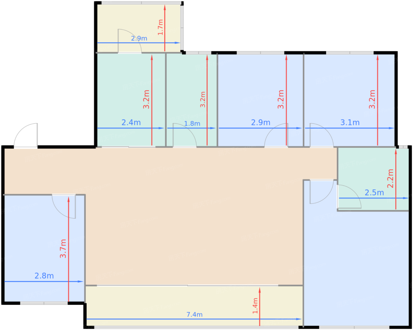
B户型 4室2厅2卫 在售
140
建筑面积: 129.00㎡
朝向:

特色

,都江堰