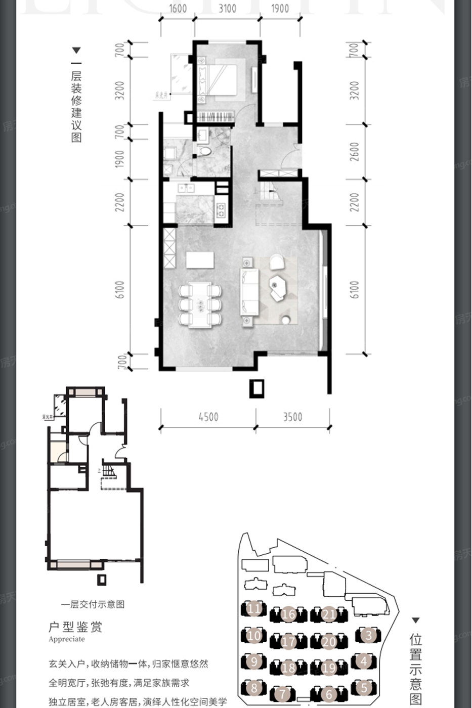
保利和光逸境下叠A1户型

下叠A1户型
下叠A1户型
共2张
下叠A1户型 4室2厅3卫 售完
65535
建筑面积: 210.00㎡
朝向:

特色

全明格局,户型方正,新川