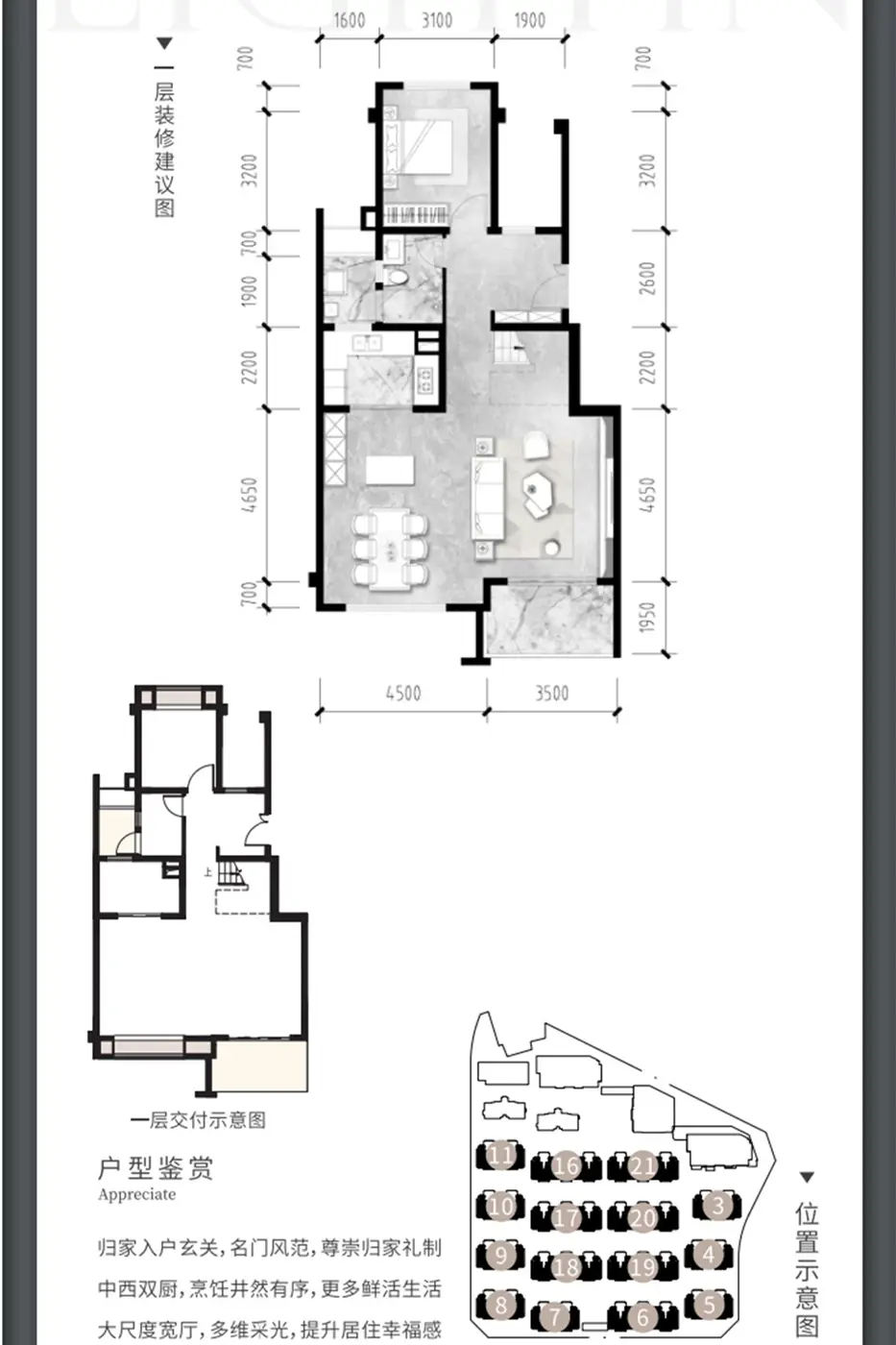
保利和光逸境上叠A3户型

上叠A3户型
上叠A3户型
共2张
上叠A3户型 4室2厅3卫 售完
65535
建筑面积: 186.00㎡
朝向:

特色

全明格局,户型方正,新川