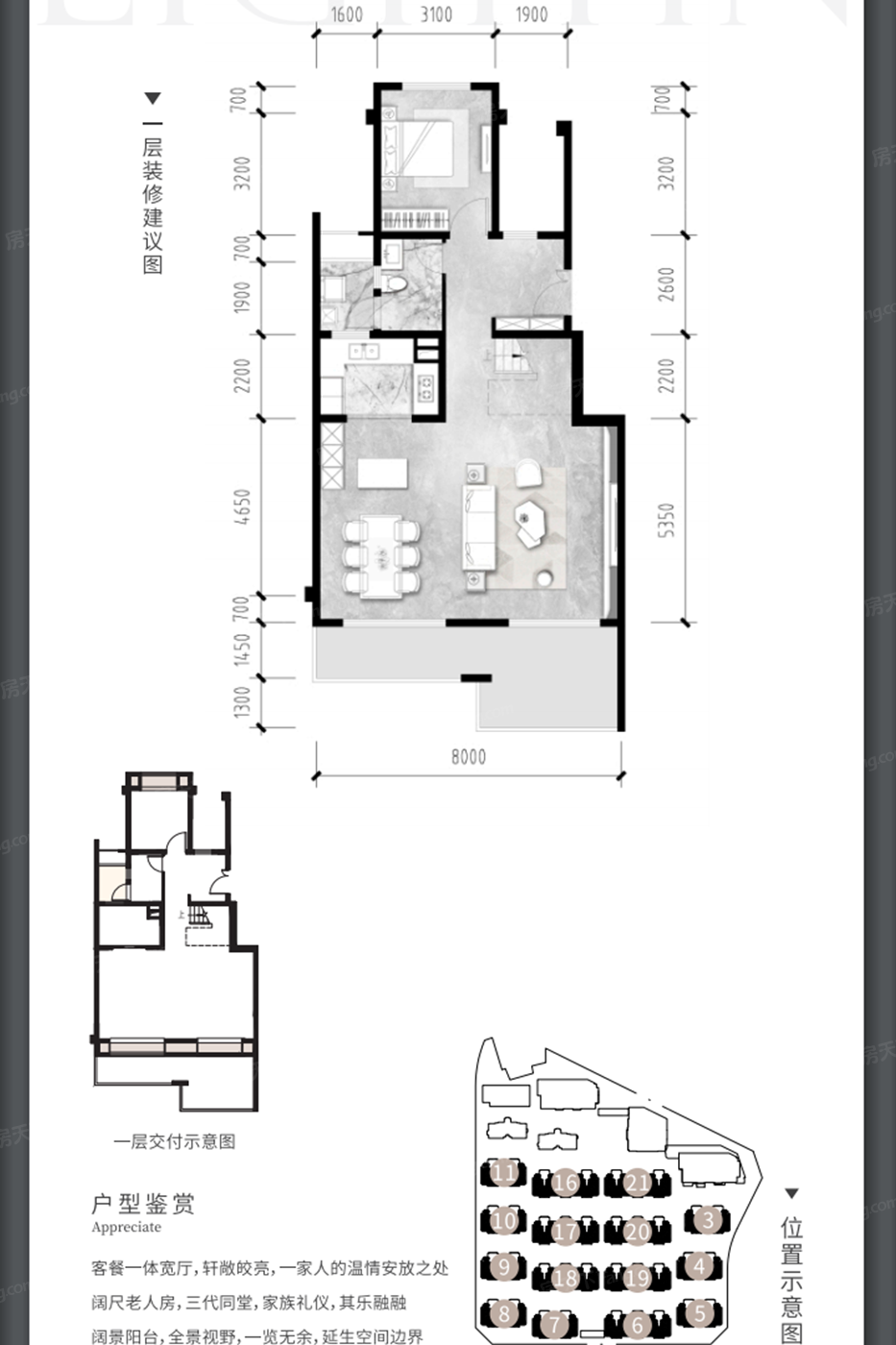
保利和光逸境中叠A2户型

中叠A2户型
中叠A2户型
共2张
中叠A2户型 4室2厅3卫 售完
65535
建筑面积: 183.00㎡
朝向:

特色

全明格局,户型方正,新川