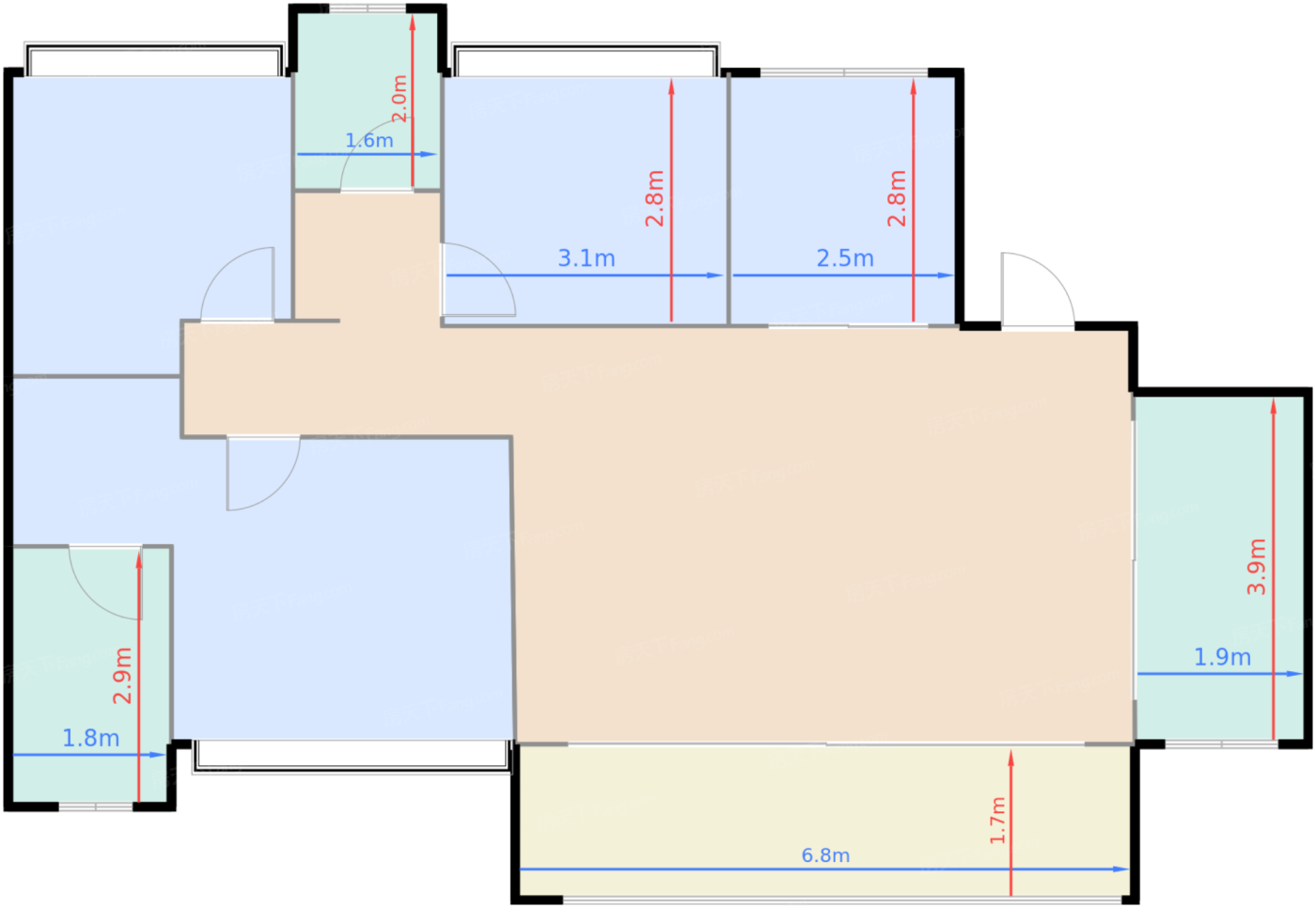
悦湖金茂悦A户型

A户型
A户型
共2张
A户型 4室2厅2卫 在售
325
建筑面积: 125.00㎡
朝向:

特色

全明格局,户型方正,武侯新城