武侯樾府A1

A1
A1
共2张
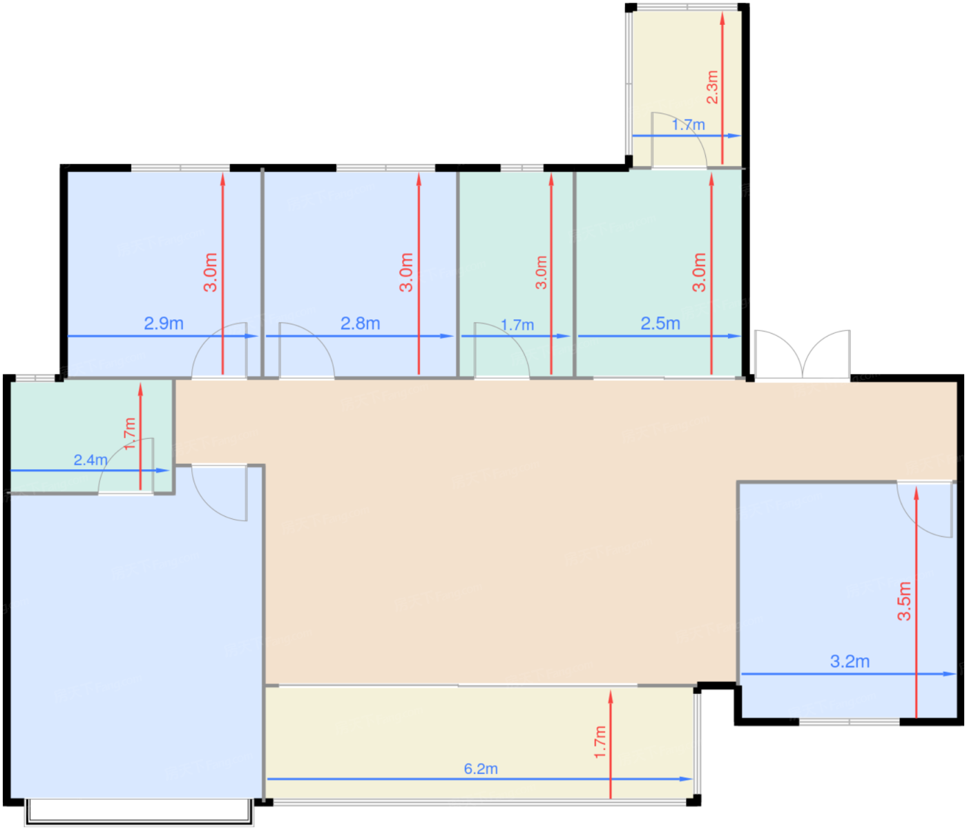
A1 4室2厅2卫 在售
296
建筑面积: 134.00㎡
朝向:

特色

主卧带卫,大面宽阳台,武侯新城