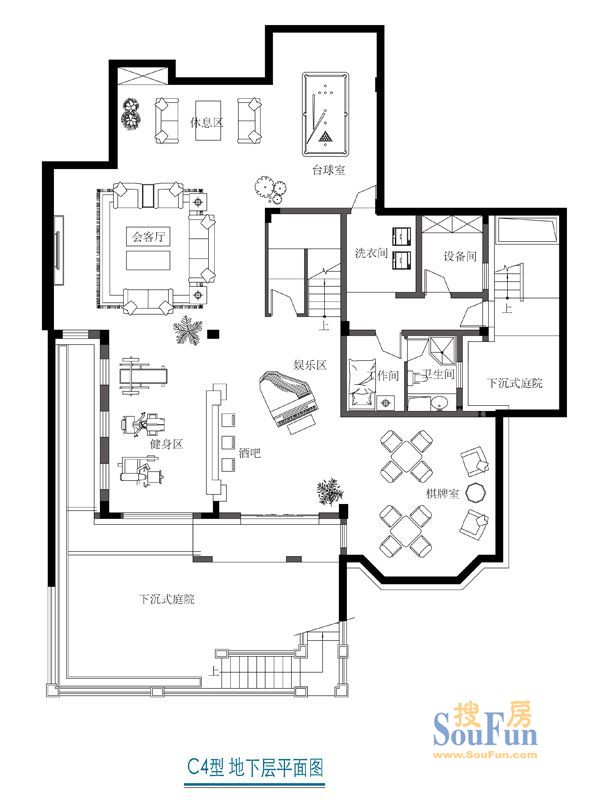
半岛君望C4户型

C4户型
C4户型
C4户型
共3张
C4户型 4室2厅4卫 售完
1947
建筑面积: 324.54㎡
朝向:

特色

入户花园,全明格局,干湿分离,餐客分离,南桥