项目价值分析报告
综合评分
-
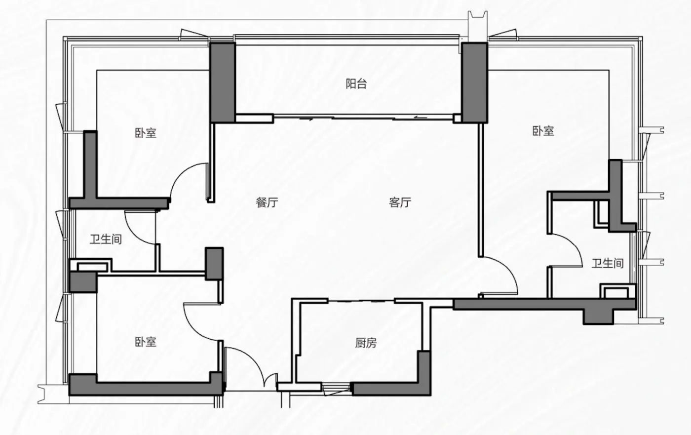
项目户型 9.0
-
交通配套 9.7
-
教育配套 9.8
-
生活配套 9.9
-
交通配套
项目周边直线三公里范围内分布有18座地铁站点,包括但不限于福田口岸、皇岗村、福民、福保、石厦、益田、皇岗口岸、会展中心、岗厦、福邻、购物公园、沙尾、岗厦北、赤尾、福田、市民中心、上沙以及福星等站,轨道交通网络发达。其中,距离项目最近的地铁站为福田口岸。此外,项目直线一公里范围内设有25个公交站点,距离最近的福田水围天桥站仅约211米,公共交通体系极为完善,出行便捷性极高。
-
教育配套
项目直线三公里范围内教育资源丰富,涵盖68所幼儿园、23所小学及19所中学。其中,小学包括荔园外国语小学(水围校区)、福民小学、深圳市福田区益田小学、新洲小学以及深圳市福华小学等;中学则有深圳市益田花园学校、深圳市第三高级中学(初中部)、红岭中学石厦初中部、石厦学校(中学部)以及深圳市福田外国语高级中学等,充分满足不同阶段的教育需求。
-
生活配套
项目直线三公里范围内医疗资源优越,拥有4家一级及以上医院,其中中山大学附属第八医院距离项目约3公里,为居民健康提供坚实保障。商业配套方面,项目周边三公里内汇聚37个商场,如时代广场、石厦时代广场、天虹商场(福民店)、卓悦INTOWN购物中心以及绿景佐阾新邑购物中心等,商业氛围成熟,可全面满足日常消费需求。同时,项目周边生态环境优良,三公里范围内分布有85个公园,其中最近的公园距离仅约129米,为居民日常休闲活动提供了极大便利。
售楼处优惠活动
楼盘动态
了解更多楼盘详细
- 深房许字(2023)福田005号
- 2023-05-24
- 住宅
- 深圳市承翰投资开发集团有限公司
- 塔楼
- 70年
- 2025-09-30
- 540
- 深圳市承翰物业管理有限公司
- 住宅9.8元/㎡/月
- 24480
- 240182
- 暂无信息
- 40%
- 6.00
- 有装修
楼盘问答
全部问题-
这个楼盘交通怎么样,公交多不多,地铁挤不挤,上下班乘公交方便吗?
19***79这地方有4号、7号、10号地铁线,离福民地铁站差不多700米,福田口岸也就500米,旁边还有公交站,出行挺方便的! -
承翰湾尚国际值得入手吗,最近想去看看,不知道能不能抢到?
18***28这个楼盘整体口碑挺好的,但建议你亲自去踩踩盘,感受一下周边环境和户型设计。可以多跟现场销售聊聊,或者找找懂行的朋友问问,毕竟买房是大事,得多对比几家,别急着下决定。
周边配套
楼盘点评
全部点评为您推荐
了解更多免责声明
本网呈现的户型图为第三方提供的非标准的参考户型图或根据第三方提供的户型图通过系统/技术等手段生成的非标准的参考户型图,不应作为您交易的决策依据。户型图上呈现的户型、面积、朝向、内部结构、功能分区仅供展示参考,实际信息请以与开发商签订的商品房买卖合同为准。 详细请阅读 《重要风险提示》 。




