项目价值分析报告
9.4
综合评分
-
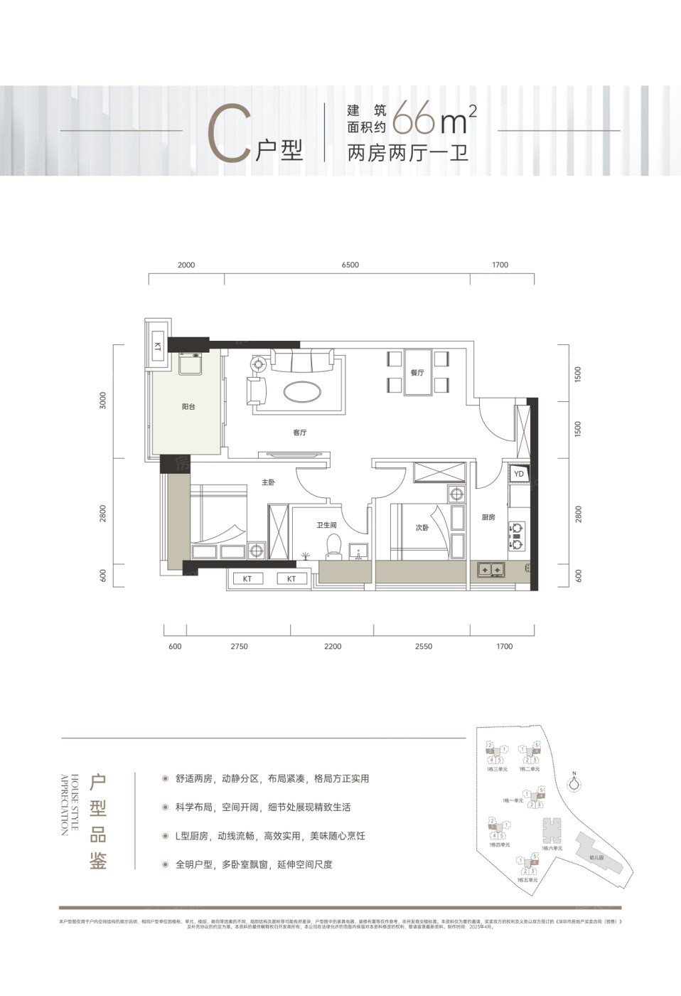
项目户型 9.0
-
交通配套 9.2
-
教育配套 9.7
-
生活配套 9.7
-
交通配套
在距离本项目直线3公里的范围内,分布着七个地铁站点(包括盛平、尚景、龙园、回龙埔、南联、龙城广场和双龙),构成了便捷的轨道交通网络。其中,盛平站是离本项目最近的地铁站。此外,在直线1公里范围内,有17个公交站点,距离最近的陂头肚村站仅约278米,确保了周边公共交通设施的高效与便利性。
-
教育配套
直线3公里范围内,共有68所幼儿园供选择。同时,该区域还配备了10所小学,其中包括龙城小学、深圳市盛平小学、深圳市龙岗区清林小学、深圳市龙岗区振新小学以及深圳市龙西学校等。另外,直线3公里范围内还分布着11所中学,例如平冈中学、龙岗中学、深圳市龙岗区龙盛学校、华中师范大学附属龙园学校和深圳市兴泰实验学校等。
-
生活配套
本项目周边3公里范围内拥有27个购物中心,如宝能·allcity城市广场(龙岗店)、君盛百货、锦泰城、人人购物广场(富德店)和万科里等,充分满足居民日常购物需求。此外,本项目周边生态环境十分优越,3公里范围内有95个公园,最近的一个公园距离本项目仅约141米,为居民提供了丰富的休闲娱乐场所。
免费解锁分析报告
售楼处优惠活动
免费专车接送
预约专车即可享免费专属座驾接送
133人已参与
报名还剩21天
立即报名
楼盘动态
了解更多楼盘详细
- 深房许字(2023)龙岗015号
- 2023-07-28
- 住宅
- 深圳市永业盛投资有限公司
- 塔楼
- 70年
- 2025-03-31
- 932
- 深圳市维百盛鑫达物业有限公司
- 住宅3.9元/㎡/月
- 25000
- 110000
- 暂无信息
- 40%
- 3.20
- 待定
楼盘问答
全部问题-
紫和嘉园现在开售了吗?价格怎么样?值得购买吗?
19***79紫和嘉园已经开售了,价格嘛,还算合理。不过买房是个大事,建议你多比较几家,看看性价比再说。 -
紫和嘉园这个楼盘受欢迎程度如何?有什么相关信息能分享一下吗?
16***82紫和嘉园似乎是个挺火的项目,很多人都在关注。不过具体信息我这里了解不多,建议你上网查查最新的房产资讯,或者去实地看看,那边的工作人员应该会给你详细介绍。
向置业顾问咨询楼盘信息
周边配套
获取学区、交通、商业配套信息
楼盘点评
全部点评
158****7040
这个楼盘的价格大约是每平方米37541元,开发商的信誉很高,口碑不错,房屋质量也比较有保障。
果友9856774997
交房时一般要带好身份证、购房合同、付款凭证这些基本材料。小区容积率高,楼挨得近,确实会影响采光和视野,住着可能没那么通透,私密性也差一些,整体居住舒适度会打点折扣。
153****2868
小区有12种户型,面积从112到175平不等,选择挺多的,小户型我挺中意。绿化规划看着不错,整体环境有想象空间。至于能不能全屋交付,目前还不好说,得看后期落实情况。
我也要点评一下
为您推荐
了解更多免责声明
本网呈现的户型图为第三方提供的非标准的参考户型图或根据第三方提供的户型图通过系统/技术等手段生成的非标准的参考户型图,不应作为您交易的决策依据。户型图上呈现的户型、面积、朝向、内部结构、功能分区仅供展示参考,实际信息请以与开发商签订的商品房买卖合同为准。 详细请阅读 《重要风险提示》 。

