项目价值分析报告
9.3
综合评分
-
项目户型 9.5
-
交通配套 8.2
-
教育配套 9.8
-
生活配套 9.8
-
交通配套
在楼盘周边1公里范围内分布着23个公交站点,其中最近的文化中心站仅相距70米,极大地便利了居民的公共交通出行。
-
教育配套
在直线3公里的范围内,共有12所幼儿园供儿童入学。此外,在同一范围内还设有4所小学,包括上海世外教育附属汾湖实验小学、芦墟高新小学、莘塔小学以及芦墟镇第二中心小学;同时,还有4所中学,分别是江苏省汾湖高新区实验初级中学、吴江汾湖经济开发区高级中学、苏州市吴江区莘塔中学和吴江区芦墟初级中学,为不同年龄段的学生提供了丰富的教育资源。
-
生活配套
楼盘周边3公里范围内配备有一家一级及以上医院,其中吴江第五人民医院距离项目2.5公里,确保了居民的医疗需求。此外,在直线3公里范围内,还分布着9个商场,包括碧乐时光·汾湖购物中心等,商业配套完善,能够充分满足居民的日常生活购物需求。周边生态环境宜人,3公里范围内拥有12个公园,其中最近的一个公园距离项目仅337米,为居民提供了便利的休闲空间。
免费解锁分析报告
售楼处优惠活动
限时闪购周
售楼部举办限时闪购活动参与即享优惠
本月19人已参与
报名还剩6天
立即报名
免费专车接送
预约专车即可享免费专属座驾接送
134人已参与
报名还剩20天
立即报名
楼盘动态
了解更多楼盘详细
- 苏房预吴江2023 8号
- 2022-07-02
- 底商住宅
- 苏州鹏云集团
- 板楼
- 70年
- 2024-10-31
- 198
- 暂无信息
- 住宅1.7元/㎡/月
- 9099
- 60437
- 暂无信息
- 18.5%
- 4.90
- 待定
楼盘问答
全部问题-
嘉乐城A5地块最近有开盘的消息,您对这个项目感兴趣吗?
15***19当然可以,亲自去现场看看是了解项目的最好方式,同时也可以多咨询一下周边的居民和销售人员,获取更全面的信息。毕竟,购房是一项重要的决定,需要仔细考虑。 -
是的,嘉乐城A5地块确实是板楼形式。它的主体结构设计注重通风和采光,采用标准的板式布局,这样的设计可以提供更好的居住体验。
向置业顾问咨询楼盘信息
周边配套
获取学区、交通、商业配套信息
楼盘点评
全部点评
167****4523
这楼盘114㎡户型设计还算合理,空间利用率不错。开发商是本地的,对区域情况比较熟悉,施工和交付也相对稳妥些。地段配套现在看着还行,交通和生活设施基本能跟上,后期升值潜力得看区域发展进度。整体来说,自住可以考虑。
193****4421
这房子价格摆在那儿,户型确实过得去,配套也算齐全,整体表现还行,就看后期发展怎么样了。
163****7729
小户型设计紧凑,利用率高,适合刚需或投资。格局基本合理,采光和通风条件不错。开发商过往项目交付稳定,品质把控较为成熟,整体值得考虑。
我也要点评一下
为您推荐
了解更多免责声明
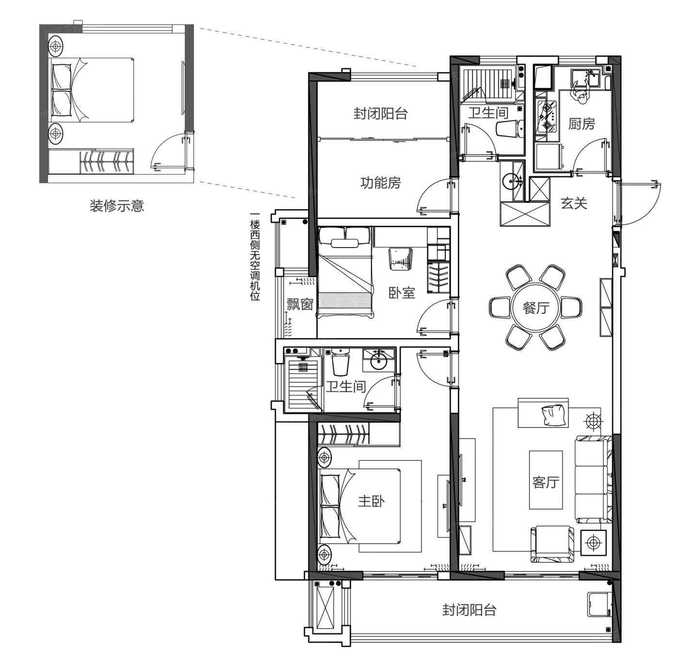
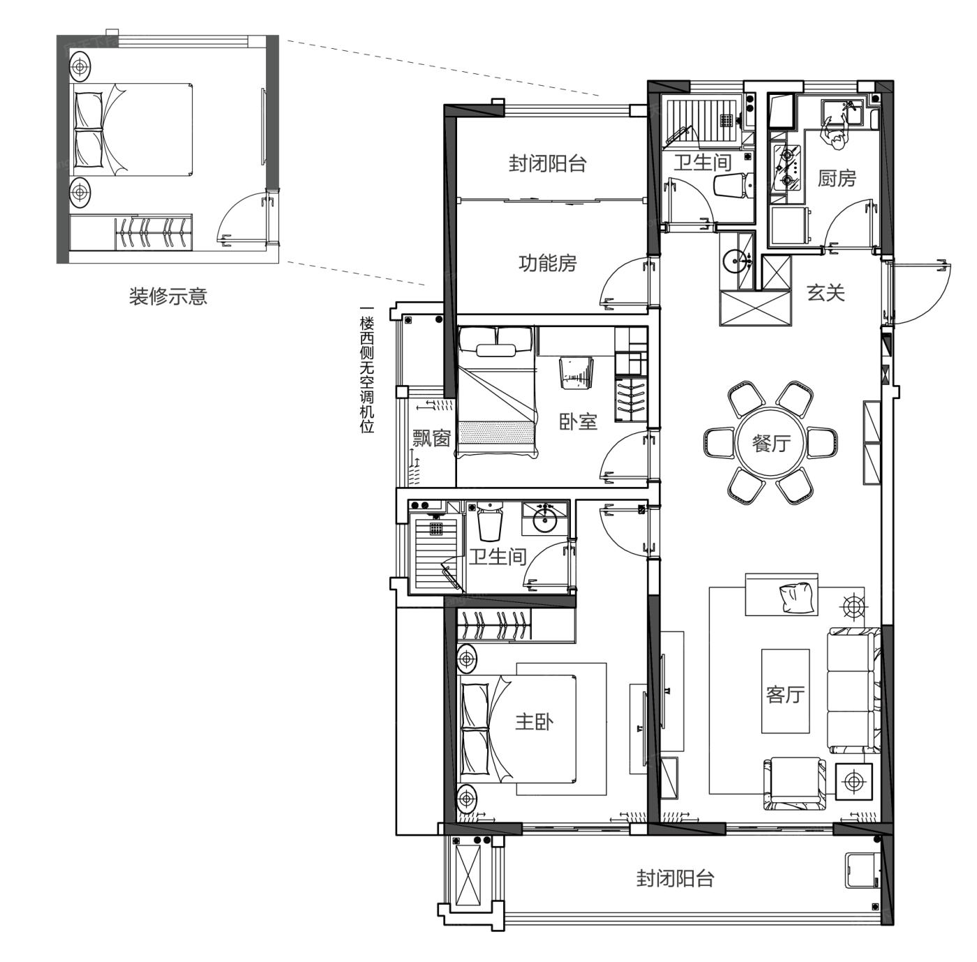
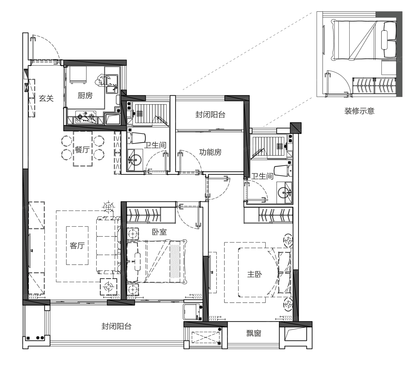
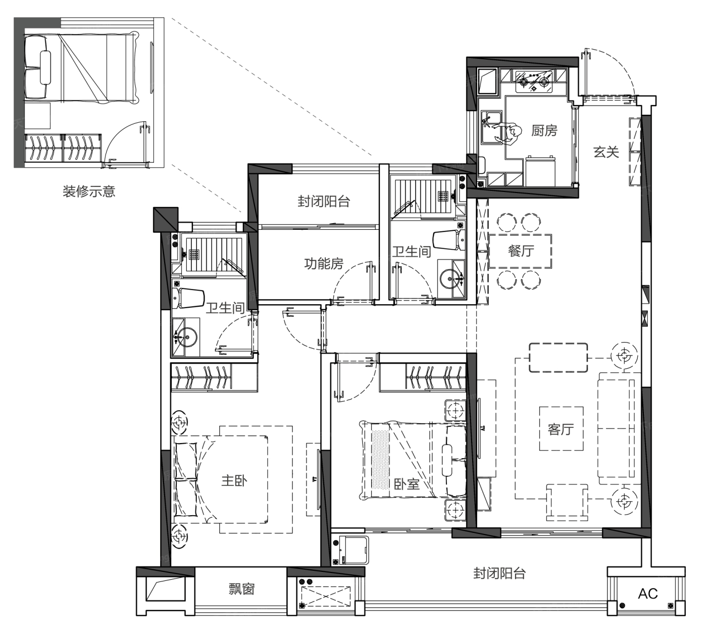
本网呈现的户型图为第三方提供的非标准的参考户型图或根据第三方提供的户型图通过系统/技术等手段生成的非标准的参考户型图,不应作为您交易的决策依据。户型图上呈现的户型、面积、朝向、内部结构、功能分区仅供展示参考,实际信息请以与开发商签订的商品房买卖合同为准。 详细请阅读 《重要风险提示》 。

