项目价值分析报告
9.1
综合评分
-
项目户型 9.9
-
交通配套 8.2
-
教育配套 9.2
-
生活配套 9.1
-
交通配套
该区域内1公里范围内设有16个公交站点,距离最近的阳光体育城站仅为167米,公共交通非常便利。
-
教育配套
在3公里的直线范围内,共有15所幼儿园,以及1所小学(同安小学)和4所中学,包括成都市龙泉驿区师一中学校、成都市龙泉驿区西川汇锦都学校、成都市龙泉驿区第九中学校、成都新高技工学校综合高中部,教育资源丰富。
-
生活配套
该楼盘周边3公里内有3家一级及以上医院,为居民医疗需求提供了充足保障,同时毗邻3个成熟商场,满足日常购物需求。此外,周边生态环境优越,3公里范围内拥有46个公园,距最近的公园仅1.2公里,便于居民日常休闲活动。
免费解锁分析报告
售楼处优惠活动
免费专车接送
预约专车即可享免费专属座驾接送
126人已参与
报名还剩22天
立即报名
楼盘动态
了解更多楼盘详细
- 蓉预售字第510112202126811号
- 2020-10-01
- 住宅
- 长业(成都)房地产开发有限公司
- 板楼
- 70年
- 2021-11-30
- 575
- 成都蜀信物业服务有限公司
- 住宅2.98元/㎡/月
- 40000
- 115238
- 暂无信息
- 35%
- 2.00
- 毛坯
楼盘问答
全部问题-
小区的卫生还挺不错的,平时可以看到有专人负责打扫。
-
龙润丰锦附近都有哪些银行?办理业务是否方便?
16***39小区附近有成都市农业银行、中国农业银行和建设银行,日常办事非常方便。
向置业顾问咨询楼盘信息
周边配套
获取学区、交通、商业配套信息
楼盘点评
全部点评
146****6531
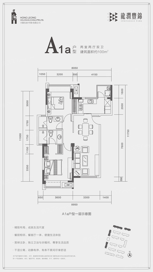
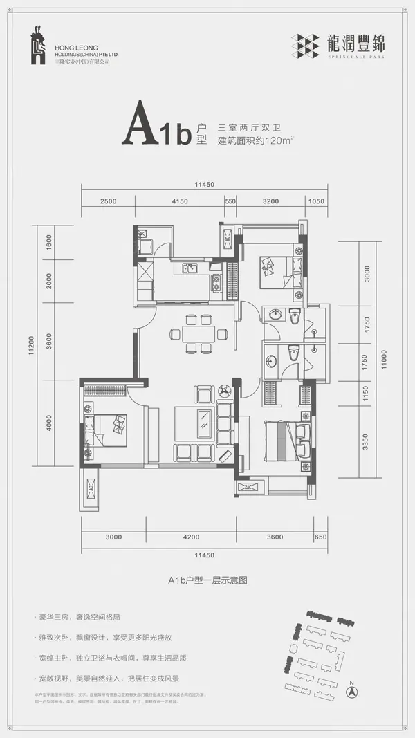
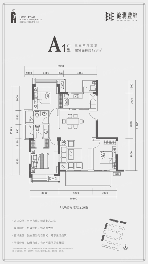
92到129平的户型选择挺灵活,适合不同需求。小区容积率偏高,楼挨得有点近,可能影响采光,白天日照时间估计不太理想。
163****5827
户型设计算实用,个别户型有空间利用不充分的情况,整体表现比较平稳,采光条件挺好,楼与楼之间距离也宽敞,居住舒适度有一定保障。
162****8179
这楼盘单价一万二左右,配套挺齐全,生活方便,小区环境也过得去,未来涨的可能性不小。
我也要点评一下
免责声明
本网呈现的户型图为第三方提供的非标准的参考户型图或根据第三方提供的户型图通过系统/技术等手段生成的非标准的参考户型图,不应作为您交易的决策依据。户型图上呈现的户型、面积、朝向、内部结构、功能分区仅供展示参考,实际信息请以与开发商签订的商品房买卖合同为准。 详细请阅读 《重要风险提示》 。


