项目价值分析报告
9.4
综合评分
-
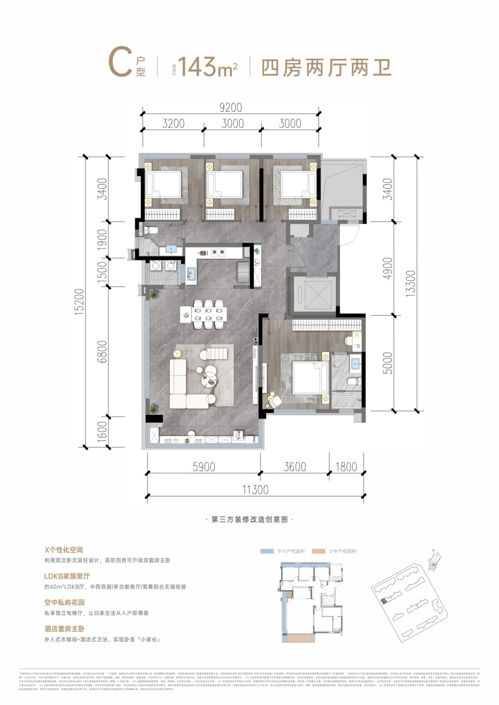
项目户型 9.0
-
交通配套 8.9
-
教育配套 9.8
-
生活配套 9.9
-
交通配套
在项目周边3公里范围内,便捷地分布着3个地铁站,包括书房、龙平路和界牌,其中最近的地铁站是书房站,极大地提升了交通便利性。此外,在1公里范围内,设有5个公交站点,公共交通网络布局合理,出行更加便捷。
-
教育配套
在直线3公里范围内,集中分布着27所幼儿园,为周边居民提供了优质的教育资源。同时,该区域还设有6所小学,包括成都市实验小学和雅校区、向阳桥小学、龙泉驿区第二小学、书房小学以及龙泉驿区第五小学校,确保了儿童的教育需求。此外,4所中学也分布在该区域内,分别为成都(国家)经济技术开发区实验学校、成都龙泉二中、向阳桥中学和成都七中东安湖学校,为青少年提供了多样化的学习选择。
-
生活配套
项目周边医疗资源丰富,在3公里范围内,分布着6家一级及以上医院,其中成都市龙泉驿区第一人民医院距离项目仅1.6公里,为居民提供了可靠的医疗保障。在商业配套方面,项目周边3公里范围内设有6个商场,包括龙泉龙湖东安天街、吾悦广场(成都龙泉驿店)和驿都汇等购物中心,为居民的日常生活提供了便利。此外,周边生态环境优越,3公里范围内拥有134个公园,其中最近的一个公园距离项目仅320米,为居民提供了便捷的休闲场所。
免费解锁分析报告
售楼处优惠活动
免费专车接送
预约专车即可享免费专属座驾接送
126人已参与
报名还剩21天
立即报名
楼盘详细
- 510112202474762
- 2024-10-31
- 底商别墅住宅
- 成都经开兴驿方升置业有限公司
- 板楼
- 70年
- 2026-12-01
- 307
- 四川龙湖兴驿物业服务有限公司
- 暂无信息
- 20666
- 41333
- 495个
- 30%
- 2.00
- 有装修
楼盘问答
全部问题-
龙湖·天澜小区有多少户人家?小区面积大吗?买车后停车方便吗?
14***66龙湖·天澜共有307户人家,小区占地约20666.77平方米,算是相当宽敞了。至于停车,这里停车条件不错,应该不会太麻烦。 -
龙湖·天澜的居住体验如何?配置和生活舒适度怎么样?
14***23建议亲自去看看房子和周边环境,或者找中介详细了解。这样能更准确地判断是否符合你的需求。经济条件允许的话,可以考虑入手。
向置业顾问咨询楼盘信息
周边配套
获取学区、交通、商业配套信息
楼盘点评
全部点评
140****8567
128㎡的户型挺不错的,感觉是他们的主打。这个区域正在快速发展,周边的交通和购物设施都有相应的规划,未来发展值得期待。
果友8563045791
绿化确实偏少,楼栋排得比较密,整体看起来有点空,等到2025年底交房还有段时间,希望后期能完善一下景观。
187****9014
听说交房时间定在2025年底,绿化确实差点意思,楼盖得挺密,空地多但绿意不足,整体看着有点空荡,住进去可能得靠后期补栽来改善环境。
我也要点评一下
为您推荐
了解更多免责声明
本网呈现的户型图为第三方提供的非标准的参考户型图或根据第三方提供的户型图通过系统/技术等手段生成的非标准的参考户型图,不应作为您交易的决策依据。户型图上呈现的户型、面积、朝向、内部结构、功能分区仅供展示参考,实际信息请以与开发商签订的商品房买卖合同为准。 详细请阅读 《重要风险提示》 。
