项目价值分析报告
综合评分
-
项目户型 9.4
-
交通配套 9.7
-
教育配套 9.7
-
生活配套 10.0
-
交通配套
在周边直线3公里的范围内,共有14个地铁站,包括但不限于滨河路、西环路、塔园路、虎丘、西津桥、金鸡墩、何山、狮山路、桐泾北路、马运路、沙金桥、青山桥浜、白洋湾公园和狮子山等。轨道交通网络发达,最近的地铁站是滨河路。此外,在直线距离1公里范围内,共有13个公交站点,最近的滨河路津桥街南站距离仅523米,周边的公共交通设施非常便捷。
-
教育配套
在直线3公里的范围内,共有44所幼儿园。此外,在同一范围内,还有18所小学,其中包括苏州市阳光城实验小学、苏州高新区实验小学(邓尉路校区)、三元实验小学、江苏省苏州高新区实验小学和苏州市金阊外国语实验学校等。同时,在直线3公里范围内,还有10所中学,例如苏州市田家炳实验高级中学、江苏省苏州实验中学、苏州市第十二中学、苏州高新区实验初级中学(马运路校区)和苏州高新区实验初级中学(金山路校区)等。
-
生活配套
在楼盘直线3公里的范围内,共有4所一级及以上医院。其中,苏州大学附属第二医院络香路院区距离楼盘约2.2公里,苏州大学附属第二医院三香路院区距离楼盘约2.7公里,苏州高新区人民医院距离楼盘约2.2公里,这些医院为居民提供了良好的医疗保障。此外,在楼盘周边3公里范围内,共有87个商场,包括金门国际商业广场、港龙城商业广场、易生活购物公园、今雨荟和苏州绿宝广场等购物中心,商业配套设施完善,能够充分满足居民的日常购物需求。同时,周边生态环境优越,3公里范围内有144个公园,最近的一个公园距离仅437米,为居民提供了便利的休闲场所。
售楼处优惠活动
楼盘动态
了解更多楼盘详细
- 苏房预姑苏2019305号
- 住宅
- 绿都地产
- 板塔结合
- 70年
- 2020-08-01
- 321
- 绿都物业服务公司
- 住宅4.99元/㎡/月
- 41545
- 45700
- 暂无信息
- 37%
- 1.10
- 毛坯
楼盘问答
全部问题-
听说绿都蘇和雅集的绿化非常不错,是真的吗?那里的内部环境怎么样?
14***42是的,那里的绿化确实很好,而且内部环境也十分宜人,比较安静,保持得很干净。 -
绿都姑苏雅集的绿化怎么样?内部环境如何?
18***20绿化确实不错,而且内部环境很安静,保持得很干净。
周边配套
楼盘点评
全部点评为您推荐
了解更多免责声明
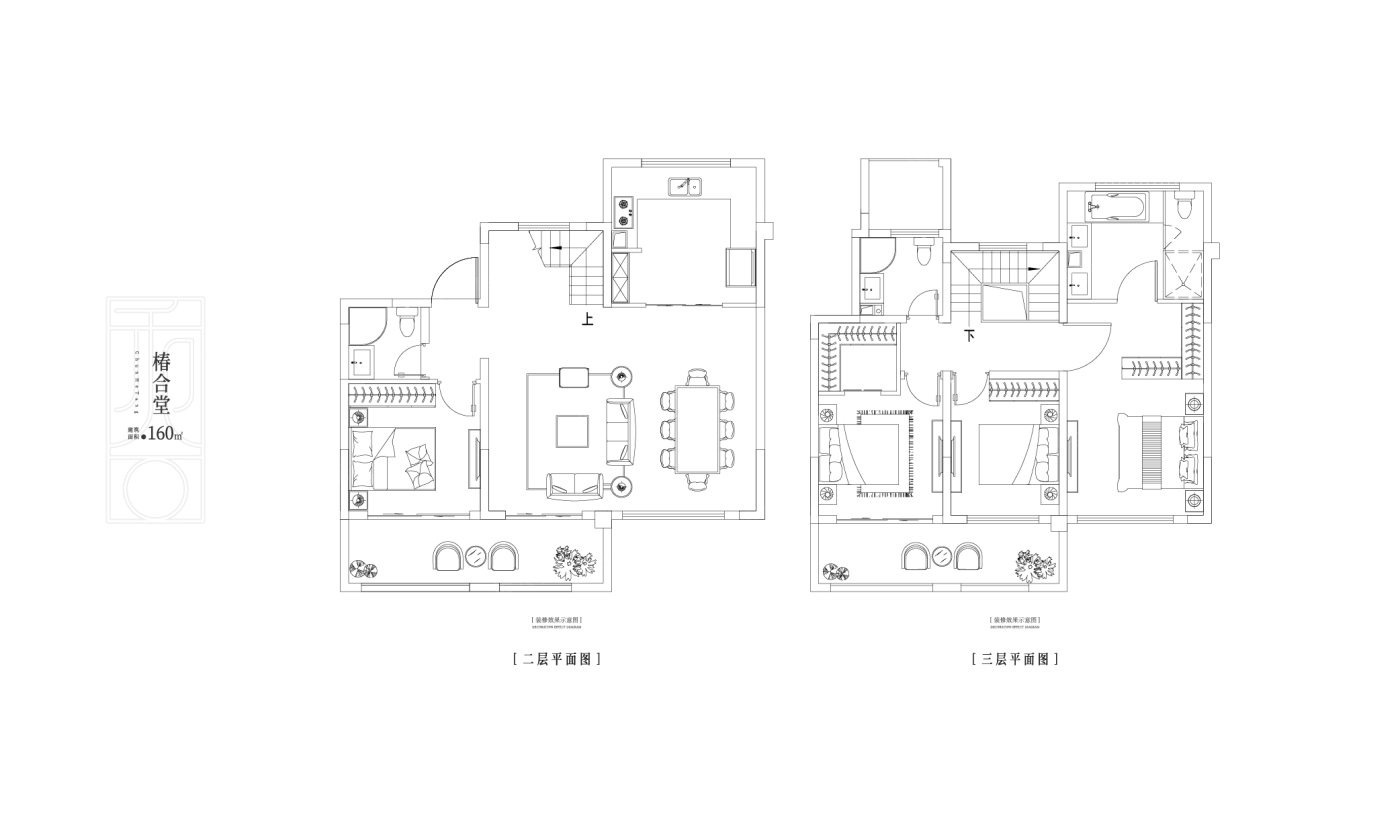
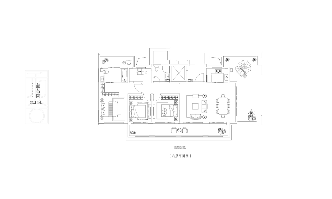
本网呈现的户型图为第三方提供的非标准的参考户型图或根据第三方提供的户型图通过系统/技术等手段生成的非标准的参考户型图,不应作为您交易的决策依据。户型图上呈现的户型、面积、朝向、内部结构、功能分区仅供展示参考,实际信息请以与开发商签订的商品房买卖合同为准。 详细请阅读 《重要风险提示》 。


