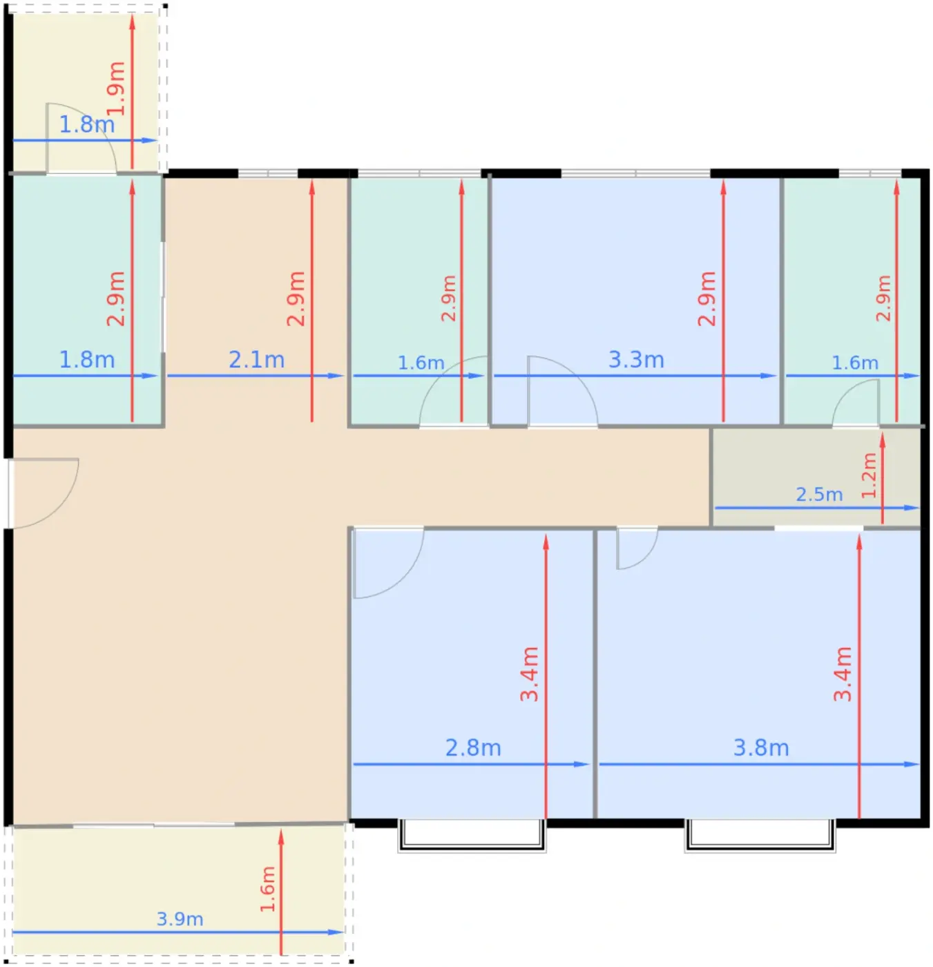
复地天府湾C户型

C户型
C户型
共2张
C户型 3室2厅2卫 在售
78
建筑面积: 104.00㎡
朝向:

特色

南北通透,全明格局,其他